
Becoming-with: a rhizomatic solar cart by Hannah Chalew is licensed under a Creative Commons Attribution-ShareAlike 4.0 International License.
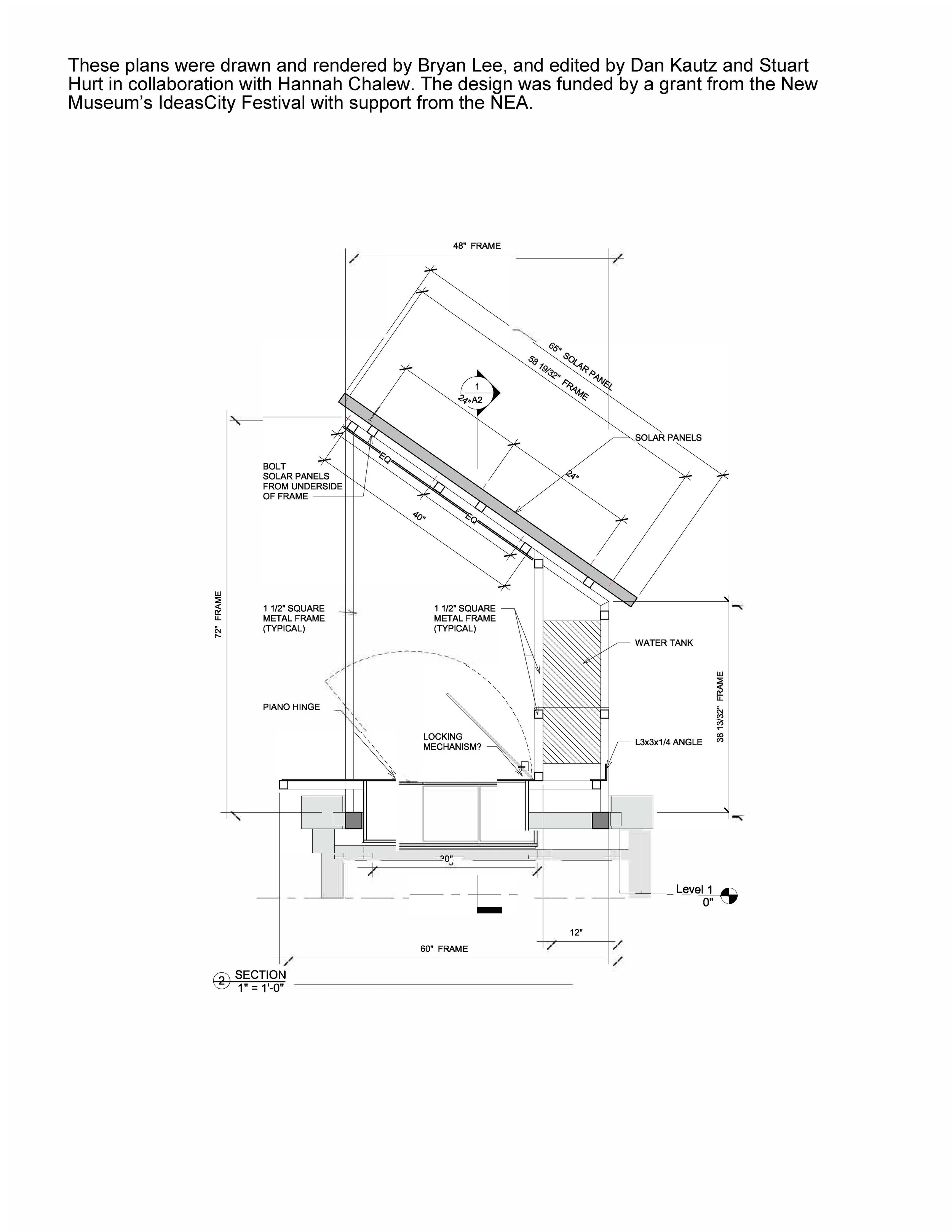
These plans were drawn and rendered by Bryan Lee, and edited by Dan Kautz and Stuart Hurt in collaboration with Hannah Chalew. The design was funded by a grant from the New Museum’s IdeasCity Festival with support from the NEA.
To download the full plans, including wiring information and details on the trailer, water tank, and solar components, click here